Nova cara para a praça de Unistalda

As melhorias visam tornar a praça mais agradável e funcional.

Publicado em

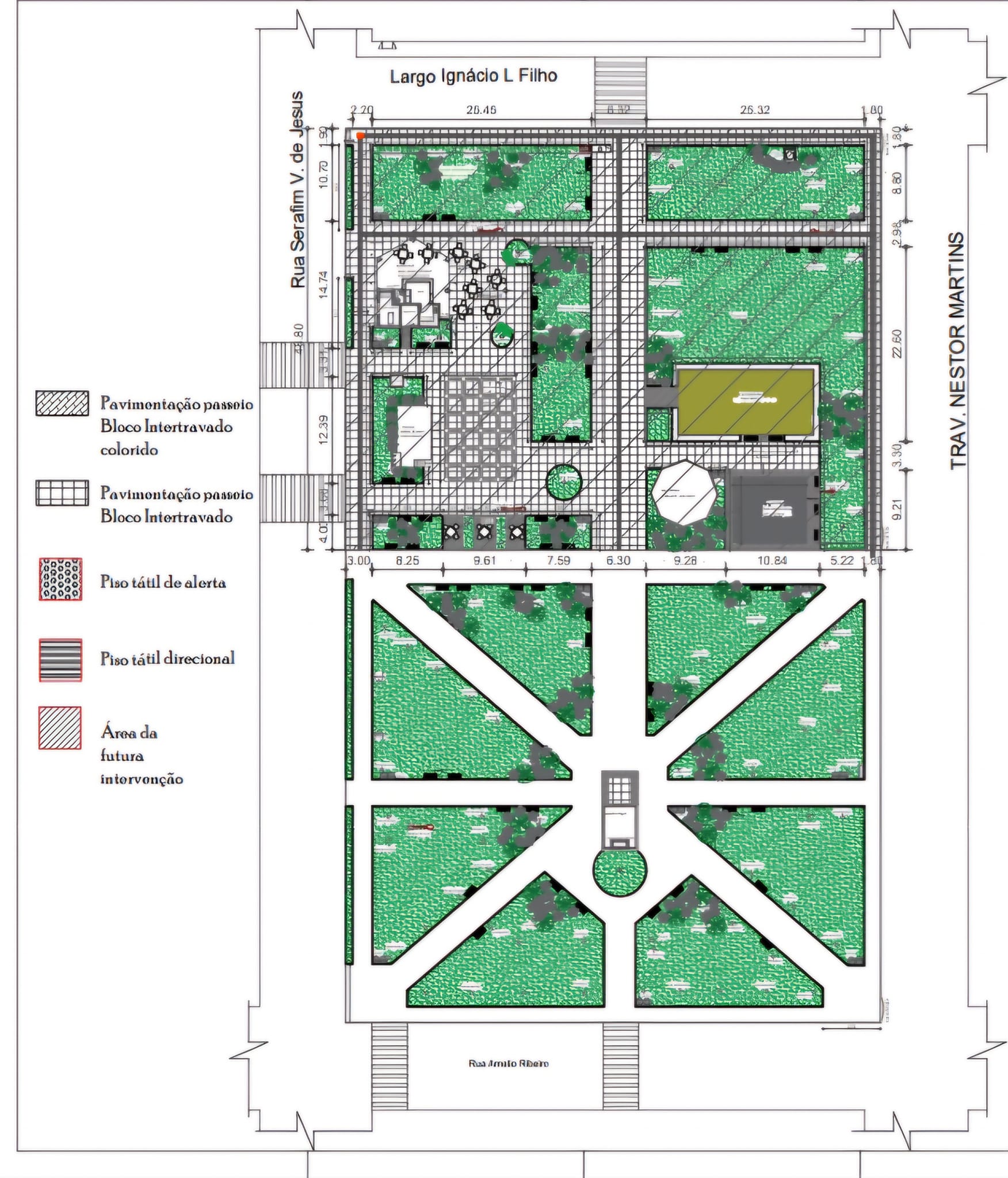
As obras de modernização da praça Batista Pessota iniciaram nesta segunda (14/10). Com um investimento de 420 mil, sendo metade proveniente de emenda parlamentar do senador Paulo Paim (PT) e a outra metade de recursos próprios da Prefeitura, o local ganhará uma nova cara.

📲 Acesse a comunidade do NP no WhatsApp

Conforme o prefeito José Gilnei Manzoni, as melhorias visam tornar a praça mais agradável e funcional, oferecendo melhores condições para a população. As mudanças incluem a harmonização do ambiente, facilitando a circulação e a visibilidade.

Um dos destaques da obra é a nova pracinha de brinquedos, com piso em grama sintética, garantindo mais higiene e um ambiente mais agradável às crianças.

VEJA TAMBÉM: Bossoroca faz grande baile municipal pelos seus 59 anos

DEIXE UMA RESPOSTA

Por favor digite seu comentário!
Por favor, digite seu nome aqui

184.758

132,603FãsCurtir
73,387SeguidoresSeguir

Notícias Recentes

Adolescente é morta pela ex do companheiro

Guarulhos, SP - Ana Clara Alvarenga da Silva, de 15 anos, foi morta com...

General que atuou em Santiago assume comando na 5ª Divisão de Exército

Curitiba, PR - O general de divisão Ricardo de Castro Trovizo, que há pouco...

Flávio Bolsonaro fala em “resgatar o Brasil” se vencer a eleição

Ji-Paraná, Rondônia - O senador Flávio Bolsonaro, disse no último sábado (14) que quer...

Projeto que reconhece Praça Coronel Manoel Viana e segue para sanção

São Francisco de Assis – RS – (Região de Santiago) - A Comissão de...

Leia Também

Adolescente é morta pela ex do companheiro

Guarulhos, SP - Ana Clara Alvarenga da Silva, de 15 anos, foi morta com...

General que atuou em Santiago assume comando na 5ª Divisão de Exército

Curitiba, PR - O general de divisão Ricardo de Castro Trovizo, que há pouco...

Flávio Bolsonaro fala em “resgatar o Brasil” se vencer a eleição

Ji-Paraná, Rondônia - O senador Flávio Bolsonaro, disse no último sábado (14) que quer...